El Ayuntamiento ya tiene aprobado el proyecto de la primera fase, con 10 viviendas, y ha logrado una subvención autonómica que cubrirá cerca del 80 % de la inversión
El Ayuntamiento de Nuevo Baztán ha dado un paso clave en su plan para promover vivienda en régimen de alquiler sostenible dirigida a la población joven del municipio, una iniciativa con la que busca facilitar el acceso a la vivienda y favorecer que los jóvenes puedan desarrollar su proyecto de vida en la localidad, según ha informado el Consistorio.
El proyecto se desarrollará en un terreno municipal situado en la zona de Monteacevedo, con una superficie aproximada de 8.000 metros cuadrados, donde está prevista la construcción de 40 viviendas de alquiler asequible, que se ejecutarán de forma progresiva en tres fases.
En la actualidad, el Ayuntamiento ya cuenta con el proyecto aprobado para la primera fase, que contempla la construcción de 10 viviendas. Esta actuación ha sido presentada ante la Comunidad de Madrid para optar a una subvención destinada a sufragar gran parte de la inversión necesaria.

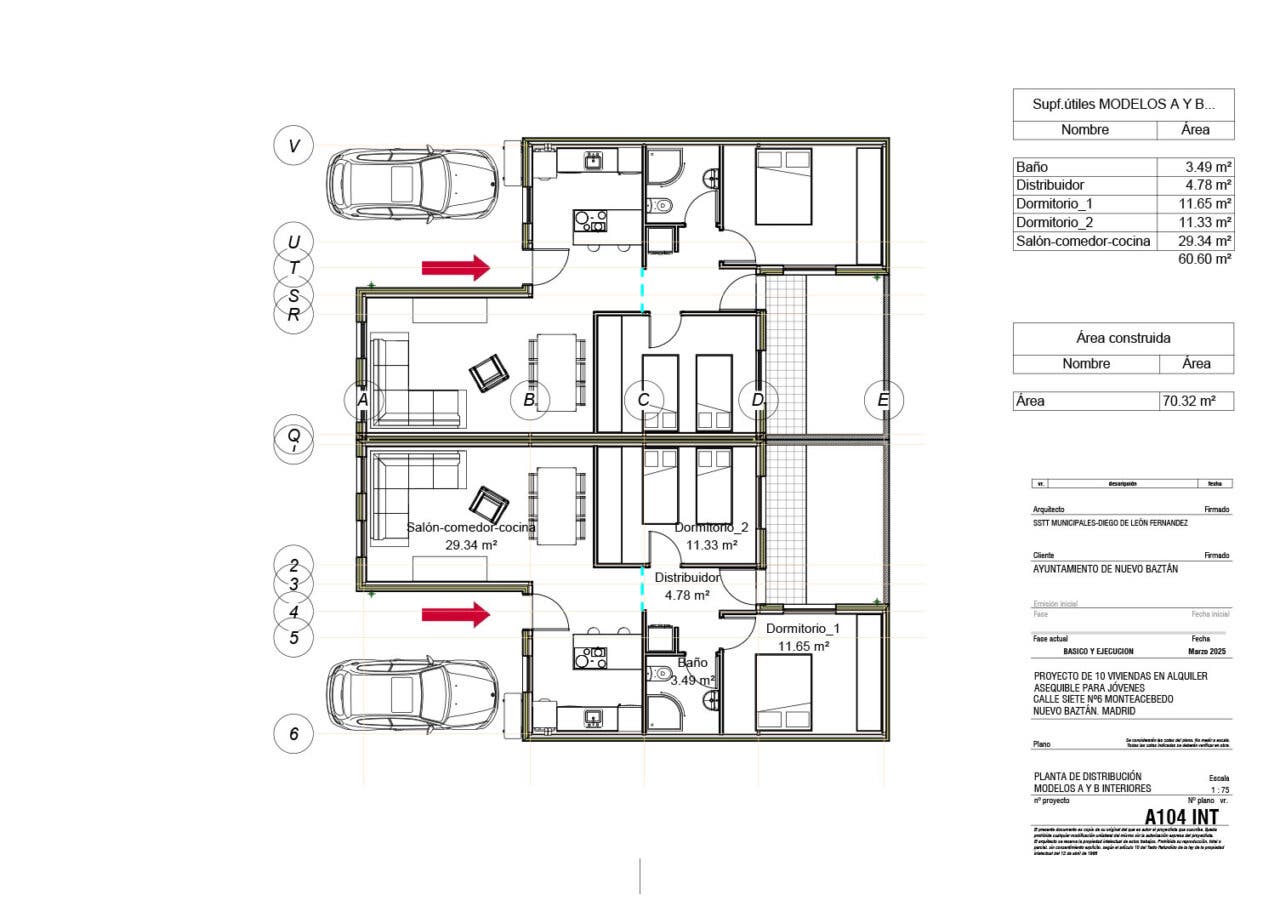
Este plano muestra la distribución de viviendas asequibles para jóvenes en Nuevo Baztán (Imágenes: Ayto.).
Hace pocos días, el Consistorio ha recibido la confirmación de la concesión de la ayuda, que cubrirá cerca del 80 % del coste total de la primera fase, lo que supone una financiación aproximada de un millón de euros. Esta aportación permitirá avanzar de forma firme en la puesta en marcha del proyecto.
En estos momentos, los departamentos municipales de Urbanismo y Vivienda continúan trabajando en la elaboración de los anexos técnicos y administrativos necesarios para completar el expediente. Una vez finalizados estos trámites, se procederá a la licitación de las obras.
La previsión inicial del Ayuntamiento sitúa el inicio de las obras de la primera fase a mediados de 2026, siempre condicionado al cumplimiento de los plazos administrativos y técnicos establecidos.
Este plan de vivienda joven se enmarca en una estrategia municipal más amplia, orientada a dinamizar la economía local, fomentar el empleo, fijar población joven y garantizar un desarrollo equilibrado y sostenible de Nuevo Baztán. El Ayuntamiento ha señalado que seguirá informando puntualmente sobre la evolución de un proyecto que responde a una de las principales demandas vecinales: el acceso a una vivienda asequible.